
Plantegninger, snitt, arealtabeller, fasader, 3d perspektiv, profiler og situasjonsplan av planlagt tiltak.
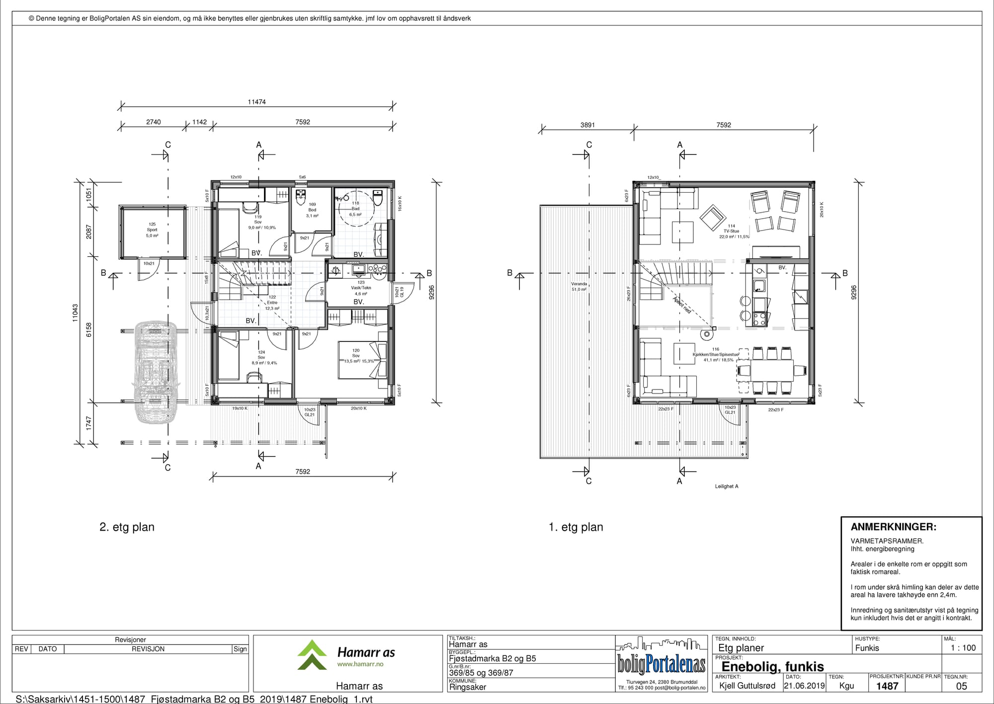
Plantegning
Tegninger av hvert plan i bygningen (krav til mål: 1:100). Plantegningene må inneholde:

Snitt og arealer
Viser hvor høyt tiltaket er, og tilpasningen til terrenget rundt boligen (krav til mål: 1:100). På snittegningene kreves:

Fasader
Illustrere bygningen og dens utforming (krav til mål: 1:100). Her vises bygningens eksteriørkarakter og materialvalg.

Bruksarealer (BRA)
Vi visualiserer bruksarealet for dokumentasjon av oppgitte arealer

Bebygd areal (BYA)
Vi visualiserer bebygd areal for dokumentasjon av oppgitte arealer

Situasjonsplan med profiler
Situasjonsplan viser plasseringen av bygningen i forhold til det som ligger rundt, på grunnlag av situasjonskartet . Situasjonsplan skal inneholde:

Terrengprofiler viser hvor høyt tiltaket er, og tilpasningen til terrenget rundt boligen. Profil skal inneholde ;

Dokumentasjon
Prosjekteringen skal dokumenteres for gjeldene krav i teknisk forskrift (TEK)
